陽剛氣息濃厚的新婚小窩,其實是女主人的體貼,為了讓每天在一堆數字裡打轉、從事金融業的男主人能擁有可以放鬆的空間,夫唱婦隨地把新居布置成以黑+白為主色調的現代空間。
Home Data
- 設計公司:禾創室內設計/禾捷室內裝俢設計有限公司
- 設計師:禾創室內設計
- 設計風格:現代風
- 房屋狀況:中古屋
- 空間坪數:23坪
- 居住成員:夫妻
- 主要建材:木作、清玻璃、灰玻璃、實木貼皮、黑色文化石

陽剛氣息濃厚的新婚小窩,其實是女主人的體貼,為了讓每天在一堆數字裡打轉、從事金融業的男主人能擁有可以放鬆的空間,夫唱婦隨地把新居布置成以黑+白為主色調的現代空間。男主人當然沒有忽略新婚太太的感受,在私領域添加溫暖的色調,也打造出專屬更衣室,更利用所剩不多的空間,規劃出宛如高級飯店般的主衛浴。
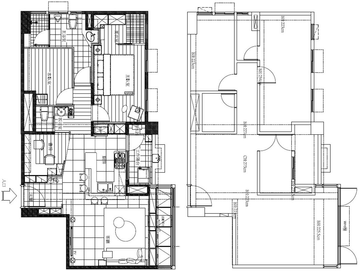
男主人找上禾創設計團隊時提出的第一要求就是:自由感,面對金融業的精準數字要求,以及一板一眼的工作形式,如何在這個 23 坪的空間打造具有自由感的空間,是禾創團隊的第一個考驗。另外,相當好客的男主人希望能帶朋友回新家聚會,無論是下班的小酌,或是假日一起哈啦,都需要有足夠的空間感容納三五好友的到訪,傳統格局大刀闊斧地重整成開放空間,才能輕鬆享受歡樂時光。

私房秘技 x 5
私房秘技 01 沙發轉個向 坐擁寬廣視聽空間
客廳是黑+白為主色調的現代空間,以噴黑的文化石作為端景牆,無論是吊扇或是立燈,金屬的質感加重了紳士的陽剛氣息,但皮革的方型桌几及柔軟的地毯中和過硬的調性,而延伸到廚房的吧台有著夜店般可以 Relax 一下的情境(圖 01 )。
刻意面向吧台的沙發是為了朋友歡聚而轉向,讓靠窗的臥榻區面向電視,一來可以更放鬆地看電視,二來也拉長與電視的距離,形成寬廣的視聽享受空間(圖 02 ),可以移動的桌几以及臥榻下方的收納,滿足屋主的機能需求。


私房秘技 02 特設小便斗 主人免為小事抓狂
很少人會在家裡特別設置男性專用的小便斗,但充分利用畸零空間打造的主衛浴,就是希望營造宛如星級飯店般的氛圍,讓男主人上廁所也能輕鬆自在,不必在意要不要掀起馬桶蓋這種小事(圖 03 )。畸零空間不僅做出三角形的洗臉檯,更在走道空間貼上半片牆的長鏡,放大空間感,也讓人有置身飯店的錯覺(圖 04 )。


私房秘技 03 半開放書房 減少玄關的壓迫感
書房幾乎是男主人工作場所的延伸,為了營造無拘束感,禾創團隊採半開放式設計,利用半高的收納櫃與灰玻結合,讓這個獨立空間享受視覺的穿透(圖 05 )。書房外轉角處做出鏤空展示收納,則可以減少玄關的壓迫感,同時作為區域轉換的緩衝(圖 06 )。


私房秘技 04 仿夜店吧台 轉角連結愛的餐桌
23 坪空間還能擁有像夜店般的小吧台實在不容易,雙面櫃的設計滿足廚房與收納飲料需求,高腳椅一旋轉還可以看電視轉播,在這裡男主人可以盡情小酌,比在夜店還輕鬆自在(圖 07 )。順著吧台 90 度轉彎進來的,則連結到雙人迷你餐桌,這是屋主夫妻的專屬燭光晚餐特定席,無論對坐或緊挨著,十足甜蜜蜜。


私房秘技 05 格柵半透光 暖色主臥感情升溫
公共領域以黑+白為主色調,一到私領域空間,男主人不忘考慮女主人的感受,添加了較有溫度的色彩。儘管仍然以棕色等中性顏色為主,但燈光及其他設計則散發出主臥應有的溫馨。利用格柵的透光原則,床頭壁燈與更衣室拉門有一致性的設計(圖 10 ),打開拉門後有條不紊的收納,讓人安心不少(圖 11 )。


Designer Data
- 禾創室內設計/禾捷室內裝俢設計有限公司
- 主持設計師:禾創室內設計
- Email:designer99@so-net.net.tw
- 網址:hchome.com.tw
- 電話:02-2377-7559
- 地址:台北市大安區和平東路三段396號1樓
相關閱讀
- 俐落現代風打造30坪居家設計,成就科技新貴心目中的理想生活
- 落實現代設計之夢,設計師的自慢私宅
- 男人在家,就是在城堡裡享受人生
- 裡子面子都兼顧!書房x更衣間的俐落表率設計
- 換個角度,看見不同感動!獻給科技人的暖心現代風居家設計
- 機能美感兼具 紳士潮男最愛的男人味
- 把房子當山水造景 男主人用品味招財運