40年老屋狹長型的加上只有兩面窗戶,因此有嚴重的採光不足的問題,原本的格局只有1個房間,一家四口都睡在同一個房間內,但是隨著小孩的成長希望能給他們擁有自己的房間,此外長型屋的走廊也造成空間的浪費,因此需要將格局重新規畫,面對這些需求設計師該如何解決呢 ?
Home Data
- 設計公司:摩登雅舍室內裝修
- 設計師:汪忠錠、王思文
- 設計風格:美式鄉村風
- 房屋狀況:老屋
- 空間坪數:22坪
- 居住成員:年輕夫妻+2個小孩
- 空間格局:3房2廳
- 主要建材:超耐磨地板、木作、進口石英磚、噴漆

整體空間以溫馨簡約的美式鄉村風為定調,主臥房的玻璃拉門引入更多的自然光。
小編帶你看好宅
40年老屋狹長型的加上只有兩面窗戶,因此有嚴重的採光不足的問題,原本的格局只有1個房間,一家四口都睡在同一個房間內,但是隨著小孩的成長希望能給他們擁有自己的房間,此外長型屋的走廊也造成空間的浪費,因此需要將格局重新規畫,面對這些需求設計師該如何解決呢 ?
屋主需求解析
1.狹長屋型+只有兩面窗戶造成採光嚴重不足。
2.格局規劃不良造成空間浪費,房間數量也不夠。
3.嚮往簡約浪漫的美式鄉村風格。
4.解決樑柱所造成的壓迫感。
5.好收好拿的收納設計,讓家裡不再亂糟糟。
因為夫妻倆非常喜歡溫馨浪漫的美式鄉村風格,因此設計師便以白色的簡約美式鄉村風為整體風格的定調,在格局規劃上,設計師將原有隔間拆除,重新調整格局,減少廊道空間的浪費並增加兩間小孩房,開放式的客餐廳設計展現寬敞開闊的空間感,為了解決採光不足的問題,主臥房選用玻璃拉門讓陽光可透入室內,而天花板的格柵搭配燈光設計讓光線如同自然光般灑落,營造清爽明亮的空間氛圍。
一家四口要生活在不太大22坪的空間裡,在許多生活機能上都必須要周詳的規畫,尤其是在收納的部分,好收好拿的櫃體設計化解家裡凌亂的問題,此外設計師也希望將空間做有效的利用,玄關處的整面櫃體結合電視牆複合機能設計,餐廳的樑柱下方規畫收納櫃創造更多收納空間。

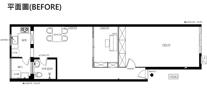
整體空間只有主臥和廚房有窗戶,長廊的設計浪費的許多空間,只有一間房間。圖片提供_摩登雅舍室內裝修

內縮主臥房空間並將原本廊道空間,規畫出兩間房間。圖片提供_摩登雅舍室內裝修

改造前,陰暗狹長老屋,缺乏完善的收納機能,家裡感覺相當凌亂。圖片提供_摩登雅舍室內裝修

玄關處的經典黑白復古地磚,一進門就感受到濃厚的美式鄉村氣息,整面的百葉造型鞋櫃滿足家人的收納需求。

典雅壁爐造型電視牆強化鄉村風格,電視牆另外一面則是收納櫃,讓空間有更多元的利用。

原本的廊道設計規畫成簡單的開放式閱讀空間,開放式的公共空間讓整體空間感更寬闊,順暢自在的動線規畫讓家人生活更舒適,天花板樑住下方的收納櫃,增加更多收納空間。

餐廳的獨台造型吊燈營造溫馨的用餐空間,在廚房的牆面上,設計師特別設計拱門造型的窗戶,增加幾分設計感也讓更多光源可透入餐廳。

喜歡烹飪的女主人希望能擁有完善的廚房機能,充足的收納櫃、好清潔的工作檯面和牆面讓打掃更輕鬆。

簡約雅緻淺色臥房設計,營造放鬆無壓的空間氛圍。

考量房間的通風性和明亮度,在牆面上設計拱門造型窗戶,創造無限延伸的視覺效果。

圓弧型的造型天花板,解決樑柱所造成的壓迫感。
小編的最愛
原本陰暗凌亂的老屋可以改造成明亮清爽舒適的美式宅,在格局規劃上設計師真的下了不少工夫,重視每個細節讓整體空間散發著優雅舒適的空間氛圍。
.jpg)
Designer Data
- 摩登雅舍室內裝修
- 主持設計師:汪忠錠、王思文
- Email:vivian.intw@msa.hinet.net
- 網址:www.modern888.com/
- 電話:02-2234-7886
- 地址:台北市大安區羅斯福路二段93號6樓之5
- 部落格:www.facebook.com/people/%E6%B1%AA%E5%BF%A0%E9%8C%A0/100002508109057
相關閱讀