對於新居的期待,男主人徧愛大理石材,女主人希望強調收納機能,他們都喜歡現代簡約的居家設計,加上好客的個性,於是就勾勒出空間藍圖。這是一間已有23年屋齡的老房子,採光及隔間都不佳,重新規劃後的空間,不但加大開窗提升屋內的自然光照,同時增加公共空間的比例,滿足屋主招待客人的需求。
Home Data
- 房屋狀況:中古屋
- 空間坪數:25坪
- 居住成員:家長×2、小孩×2
- 空間格局:3房2廳
- 主要建材:家長×2、小孩×2
在公共空間的比例上增加,滿足喜歡招待朋友來家裡的屋主需求。
機能式的餐桌可以依使用需求延展,桌面也是選用屋主喜歡的大理石紋。
Before 老屋改造與空間使用
23年的老屋採光不足,隔局也不符合屋主需求。好客的屋主時常招待朋友,因此在公共空間及廚房都需要量身打造,特別規劃。
After 好住需求清單
在夜間營造不同的居家氛圍。
增加室內自然光源,有寬敞明亮的空間感。喜愛大理石材,同時考量到保養清潔的問題。為居家成員打造不同個性的臥室空間。廚房常常需要準備很多食材,滿足使用的靈活度。移動淋浴位置,使衛浴空間保持空氣流通。
屋主的期望:喜歡現代簡約的設計風格,希望簡潔、俐落、具有穿透性的空間格局,並且有機能性收納空間運用,規劃出寬敞明亮的舒適居家。
對於新居的期待,男主人徧愛大理石材,女主人希望強調收納機能,他們都喜歡現代簡約的居家設計,加上好客的個性,於是就勾勒出空間藍圖。這是一間已有23年屋齡的老房子,採光及隔間都不佳,重新規劃後的空間,不但加大開窗提升屋內的自然光照,同時增加公共空間的比例,滿足屋主招待客人的需求。
由於現代居家風格著重在建材為空間呈現質感,並搭配男主人所喜愛的大理石。因此,除了入口玄關處,客廳電視牆也以大理石材大器打造,襯托出整體空間的時尚品味。在設計師專業的建議下,地板採用大理石紋的拋光磁磚,在維護與保養上更為輕鬆容易。配合大理石牆面花紋,客廳也選用白色調,使空間看起來更為明亮、開闊。而女主人所在意的收納,設
計師細心的依據屋主擺放物品的高度,量身打造出適合的展示櫃。並在空間各處,以區域來安置適當的收納櫃,空間因此顯得有條不紊。
另外,廚房也是另一個為女主人量身打造的天地,為了盡情招待來家中作客的朋友,女主常會需要準備許多食材,設計師針對生活所需,特別打造雙邊流理台,讓備料及洗滌都有充足的地方可以靈活運用不受限。
在現代風格的基調上,臥房以不同色系轉換情境。主臥以白搭配溫暖的褐色,大兒子則以黑色調為主,小兒子就選用舒服的淺紫色來舖陳。每個人都有一個屬於自己個性的小天地,設計師在滿足實用機能之外,同時能實現家中成員對家不同的期望。
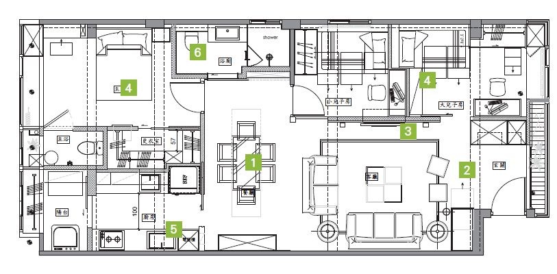
提案1 搭配餐桌造型燈飾增添居家風情
舒適的空間除了規劃得宜的隔局及動線,室內燈光的營造也是相檔重要的,配合空間風格走向,在餐廳處選擇造型燈飾做為點綴,可以營造不同的居家風情及氣氛。
提案2 加大窗戶引入光線讓空間更為明亮
原本老宅的開窗太小採光不足,設計師在規定範圍內加大開窗,整體室內的明亮度就大為提升。並多設計了一個延伸的空間區域,可以防止雨水潑灑進到室內。
提案3 跟據好使用大理石材,地面則採用拋光磁磚
大理石材雖然好看但在清潔及保養上就沒那麼容易了。依照屋主的喜好在玄關及電視牆面採用大理石,呈現空間的質感與品味。在較為難以清理的地面則改用大理石紋的拋光磁磚,看起來同樣高貴優雅,但更易保養清潔。
提案4 在現代簡約的基調下滿足喜好
有別於公共空間的白色主調,設計師以不同顏色區別不同臥室空間,讓主臥及兩個小孩房有了屬於自己喜歡的顏色。主臥是白與溫暖的褐色,大兒子房以黑色調為主,小兒子選擇舒服的淺紫色來呈現。

提案5 雙流理枱面增加使用靈活度
設計師跟據女主人的生活習慣,特別打造雙流理枱面,同時兩邊都安裝水槽,這樣一邊可以放熟食,一邊放生食。這對時常需要烹飪的女主人來說,增加了使用的範圍,做起家事能事半功倍。
提案6 淋浴與馬桶位置互換衛浴更乾爽
衛浴最害怕的就是潮溼、悶熱,因此設計師將淋浴區改在較為通風的窗戶處。簡潔明亮的設計,使用起來也更為舒適。
看更多梵蒂亞設計
Designer Data
- 梵蒂亞設計
- 主持設計師:卿敏華
- Email:service@vandia.com.tw
- 網址:www.vandia.com.tw/
- 電話:02-2930-0409
- 地址:台北市文山區羅斯福路五段127號2F
- 部落格:vandia.pixnet.net/blog