一樣是三房的格局,透過格局的重新配置,變身成為四房及兩大房的格局動線,滿足三代同堂及小家庭的空間需求。
一樣是三房的格局,透過格局的重新配置,變身成為四房及兩大房的格局動線,滿足三代同堂及小家庭的空間需求。
提問人:高麗雲 職業:會計 家庭成員:5人 坪數:40坪 地點:台中市

Before
屋主提問:
您好!我們家是三代同堂的家庭,最近才剛買下一間預售屋,限於法規,室內有兩間機房,由於家中坪數真的不大,所以想把這兩間機房做充份的運用。因為公婆年紀較大,希望有個簡單的浴室供他們專用,讓他們有獨立使用的空間,而除了所需的三間臥房外,還需要一間書房,可以供全家人使用,當然還有充足的收納空間,希望平面診療室設計師能為我們解決問題。
您好!我們家是三代同堂的家庭,最近才剛買下一間預售屋,限於法規,室內有兩間機房,由於家中坪數真的不大,所以想把這兩間機房做充份的運用。因為公婆年紀較大,希望有個簡單的浴室供他們專用,讓他們有獨立使用的空間,而除了所需的三間臥房外,還需要一間書房,可以供全家人使用,當然還有充足的收納空間,希望平面診療室設計師能為我們解決問題。
專家解答:
機房是現行建築法規所規定必須要有的,但對室內有限的空間而言,機房確實浪費不少空間,依高小姐的平面圖看來,室內的兩間機房對空間動線也造成影響,建議將一入門的機房拆除,規劃為餐廳,連接開放式客廳,為避免一入門就直接看到餐廳,可以在入門處規劃玄關區;客廳旁的機房也建議拆除,規劃為開放式書房,並以電視牆與客廳連結,書房可以從客廳進入,也可以從餐廳進入,雙動線的設計讓空間更為流暢。同時利用走道設計大面落地書櫃;書房可規劃為小孩房,並將房門往右移,加大收納櫥櫃;主臥的重點則在於收納空間的規劃,沿著牆設計大面收納櫥櫃並結合電視櫃,多功能收納櫃可以滿足各種需求;父母房則規劃在主臥旁的房間,將陽台外推納入室內空間,連結陽台外的洗台檯成為父母房專用的浴室,滿足全家人的需求。
機房是現行建築法規所規定必須要有的,但對室內有限的空間而言,機房確實浪費不少空間,依高小姐的平面圖看來,室內的兩間機房對空間動線也造成影響,建議將一入門的機房拆除,規劃為餐廳,連接開放式客廳,為避免一入門就直接看到餐廳,可以在入門處規劃玄關區;客廳旁的機房也建議拆除,規劃為開放式書房,並以電視牆與客廳連結,書房可以從客廳進入,也可以從餐廳進入,雙動線的設計讓空間更為流暢。同時利用走道設計大面落地書櫃;書房可規劃為小孩房,並將房門往右移,加大收納櫥櫃;主臥的重點則在於收納空間的規劃,沿著牆設計大面收納櫥櫃並結合電視櫃,多功能收納櫃可以滿足各種需求;父母房則規劃在主臥旁的房間,將陽台外推納入室內空間,連結陽台外的洗台檯成為父母房專用的浴室,滿足全家人的需求。
平面圖診療專家 老胡
現任 裝潢便利通Easy deco資深設計師
強項空間 老屋、單層大坪數、樓中樓、預售屋
強項風格 美式新古典風格
強項空間 老屋、單層大坪數、樓中樓、預售屋
強項風格 美式新古典風格

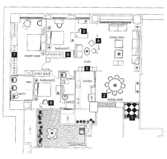
After
平面圖診療報告
1. 規劃玄關區。
2. 將入門處機房拆除,規劃為餐廳。
3. 臨客廳的機房也拆除規劃為書房。
4. 電視牆區隔書房與客廳,成為雙動線設計。
5. 走道規劃大面書櫃,滿足收納需求。
6. 小孩房門右移,加大收納櫥櫃空間。
7. 主臥沿牆規劃大面多功能收納櫃。
8. 父母房陽台外推,納為室內並連結原室內洗手檯做為浴室。
2. 將入門處機房拆除,規劃為餐廳。
3. 臨客廳的機房也拆除規劃為書房。
4. 電視牆區隔書房與客廳,成為雙動線設計。
5. 走道規劃大面書櫃,滿足收納需求。
6. 小孩房門右移,加大收納櫥櫃空間。
7. 主臥沿牆規劃大面多功能收納櫃。
8. 父母房陽台外推,納為室內並連結原室內洗手檯做為浴室。
【2.0進化版 三代同堂休閒度假屋】
1.風格當道/就是愛住北歐木設計的家 川云設計/黃劭耘
2.設計家故事/ 2.0進化版 三代同堂休閒度假屋 澄璞設計/莊効澄
3.好物百科/好氣氛從大圖壁紙開始
【設計家正團】敬請鎖定非凡新聞58台
(首播)08/04晚間10:55~11:55
(重播)08/05早上08:55~09:55
Designer Data
- 裝潢便利通
- 主持設計師:裝潢便利通設計團隊
相關閱讀