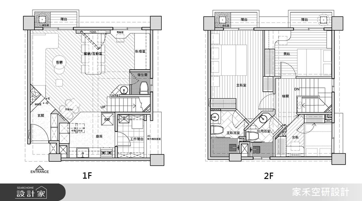
方正的格局固然看起來舒服,但跳脫傳統室內格局規劃思維,或許能賦予更優質的空間體驗!這間 36 坪複層住宅對於空間採取破格設計,大量運用斜角設計引入優越採光、創造更寬闊的居家視野,更大幅優化了公私領域動線,讓家裡的每一個視角都能沐浴著日光,望見窗外綠意。這也是設計師哥哥送給妹妹一家人的心意。
Home Data
- 設計公司:家禾空研設計
- 設計師:許家豪 Ahao
- 設計風格:現代風
- 房屋狀況:新成屋(5年以下)
- 空間坪數:36/坪
- 空間格局:三房
- 主要建材:超耐磨木地板、系統櫃、大理石、人造石、線燈、灰玻、鐵件、藝術漆
- 房屋類型:複層

小編帶你看好宅
方正的格局固然看起來舒服,但跳脫傳統室內格局規劃思維,或許能賦予更優質的空間體驗!這間 36 坪複層住宅對於空間採取破格設計,大量運用斜角設計引入優越採光、創造更寬闊的居家視野,更大幅優化了公私領域動線,讓家裡的每一個視角都能沐浴著日光,望見窗外綠意。這也是設計師哥哥送給妹妹一家人的心意。
入門玄關設計十分別緻,除了化為牆體的大型玄關櫃收納外,特別利用木質板材將玄關穿鞋椅與客廳沙發基座結合,玄關穿鞋椅斜切角設計引導視覺看向客廳大面採光窗,層板屏風陳列書籍擺設後能照顧到隱私又具備穿透感,轉角輔以線燈點亮進門空間。進入公領域由磁磚轉為超耐磨木地板,天花板橫越的樑柱用造型包樑修飾,客廳沙發稍微帶斜角的陳設方式能放大視角,串連正前方的餐廳、右側的廚房區域與通往二樓的梯間。電視牆跳脫傳統設計將電視規劃在餐桌的牆面,方便跨場域使用又不會阻礙動線。大尺寸餐桌後方靠窗處還規劃臥榻座位與簡易的工作區,創建出另一處交誼多元空間;位於右側深處的廚房採取開放式設計,不只料理空間與使用動線活絡,位置設定也能避免油煙直接飄散到休憩區。鄰近客廳處還規劃時髦用餐高腳吧台,牆面壁龕展示陳列咖啡器皿,讓一個空間擁有多樣化的使用方式。
小編的最愛
二樓主臥依循木質調設計,透過將木地板延伸到床頭板,利用材質創造空間延伸感;寬敞的主臥擁有大面落地窗引入豐沛採光,床尾電視牆以藝術塗料拼接大理石,層板取代笨重的電視櫃,讓整個寢居空間擁有度假氛圍。兩間客房同樣也是木質元素為主,透過將床鋪靠牆設計騰出完整的空間規劃書桌與梳妝打區;床尾開放式吊掛收納衣物設定在坐在床上就能自由拿取的高度,發揮臥室最大坪效。










Designer Data
- 家禾空研設計
- 主持設計師:許家豪 Ahao
- Email:jhsrd2024@gmail.com
- 網址:tyw-design.mystrikingly.com
- 電話:0937878158
- 地址:台北市民權東路二段19號3樓之3
- 部落格:sites.google.com/view/tywd01020627/設計實例/住宅空間
相關閱讀
- 老屋主換屋第2次合作,桃園如美術館的家,4房3廳專屬訂製旋轉樓梯X個性臥室
- 解密複層中古屋的改造日記!重塑狹窄格局與色彩規劃,讓小宅生活更舒心
- 日光照耀的60坪開闊現代宅!善用坪效打造美型機能兼具的海量收納
- 開箱文山富都現代宅!客廳與臥房配置窗邊臥榻,21 坪新成屋擁抱慢步調生活
- 前進科技感現代風宅邸!不鏽鋼與燈帶交織前衛風尚,石材與展示櫃烘托人文大器之姿
- 畸零空間別浪費!複層中古屋簡化樓梯量體引光入室,成就大隱隱於市的現代宅典範
- 給你最舒適的現代風生活!特調輕柔灰與淺木質調,譜寫滿室輕盈人文氛圍
- 採光不佳怎麼辦?複層中古屋捨棄樓梯扶手引入天光,活用畸零空間打造大隱於市現代宅
- 居家設計不撞型!量身訂製格局與玻璃隔屏,50 坪毛胚屋變身 ins 風日光美宅
- 被窗景綠意環繞!與自然共生的複層住宅,生活機能比住飯店還享受