一物多用,把家變大
只要懂得善用空間,家不只能變大,還可以多出許多意想不到的使用機能,從1+1大於2的概念去思考,雙面櫃兼具隔間、家具可以伸縮隱藏收進櫃子內,中島吧檯除了收電器、亦可儲放書籍、電器,一物多用創造極致用途。
概 念01:複合機能櫃完勝實牆隔間
既然空間沒辦法變大,就更必須捨棄實牆隔間,取而代之的運用手法如:一座雙面櫃體,電視牆與半腰餐櫃結合、或是書牆與衣櫃共用,都能將坪數效益發揮到最大。
實例欣賞:
化整為零,解構收 納櫃成透光屏風→賺6坪
位於書房與大窗健身區間的白鐵柱群,其實兼具隔屏與收納、展示功能,更將管道間暗藏其中,成為住家最大的機能裝飾量體!收納柱群以鐵件、木作構成,利用材質的堅固、輕薄特性,讓柱體呈現中央、上下等各異鏤空造型,令寬度不一的長型柱體化實為虛,適度遮蔽刺眼日光之餘,噴上白漆看起來更顯輕盈。空間設計暨圖片提供_工一設計
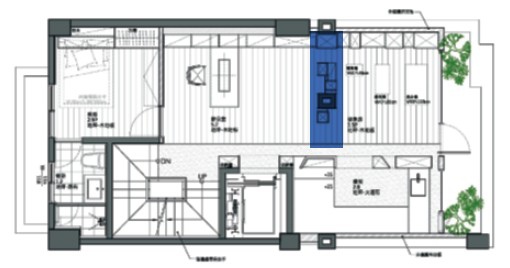
平面計畫:
原本三房變主臥、小客房、書房、休憩室,令住家每個角落都能被有效利用。
規化策略:
概 念02:最不佔空間的家具隱形術
餐桌、餐椅或是梳妝檯算是佔去空間最大的幾個家具,假如居住成員單純、或是使用頻率不高,不如選擇能輕鬆移動組合的方式,利用伸縮折疊、滑軌抽板以及滾輪五金暫時將它們藏起來,需要時再打開使用,就能讓空間更為寬廣。
實例欣賞:
拉出衣櫃抽屜,變出梳妝機能→賺0.5坪
僅僅14坪的空間,在必須規劃兩房的情況下,臥房內要配置衣櫃、還要有梳妝檯機能,有可能辦到嗎?其實關鍵就是善用五金配件!打開衣櫃的抽屜,隱藏著一張迷你梳妝檯,抽屜檯面開啟包含鏡子,各種大小尺寸的分隔設計,收納保養彩妝、飾品都不是問題,方便使用又能節省空間。空間設計暨圖片提供_Sim-Plex 設計工作室
平面計畫:
順應建築物的開窗位置規劃為主臥房,走出房門即是公共廳區,平常房門開啟時,視線也能延伸放大,降低空間的壓迫感。
規化策略:
看多聰明利用空間小撇步:1坪變2坪!坪效升級設計聖經:集結最強設計達人私房秘技,絕不浪費空間的極致裝修術






