圖/文《當代住宅設計聖經》
Designer:Vo Trong Nghia‧Daisuke Sanuki‧Shunri Nishizawa/Vo Trong Nghia Architects/Vietnam
本案座落在越南胡志明市,這棟名為「Stacking Green」住宅,是由越南建築團隊Vo Trong Nghia操刀,因應當地氣候環境,整棟建築運用12層混凝土花槽做規劃,種植了大量綠色植物,建構出一個垂直花園的建築立面,這綠色的立面,不僅有助於居民的視覺舒適度,也因為有了植裁的注入,將室內的空氣淨化,並將熱氣、污染源阻隔在外,間接讓室內達到節能目的。
光線的蹤跡無所不在
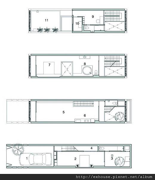
建築基地既窄又狹長,面寬4米、深達20米,是越南當地相當典型的住宅,狹長格局容易面臨到中間段採光、通風不足的問題,前者設計師選擇在格局前後規劃了兩道天井,陽光能直線式從頂樓穿透至一樓,甚至還能以斜角方式進入到其他空間,每個空間幾乎都能找到光線的蹤跡,甚至白天也無須開啟任何照明設備。
至於通風部分,由於綠色立面牆為多孔設計,其與天井也扣合著落地窗、開天窗元素,只要將門窗打開,通風良好、換氣恣意,就算不靠冷氣空調,一樣能過著自然涼、採光佳的舒適生活。
01 石材質的特色,讓視覺感官變得清涼
空間中壁面大量運用石材來做鋪陳,一來石材比木頭體感溫度較低,二來也運用材質本身的質地與色澤,降低空間色溫,相互交織出的清涼感,也能達到感官舒爽的目的。
02+03 光線順著天井滲透入室,不開燈採光照樣充足
本案為狹長型格局,為改善室內採光,以及減少照明能源的使用,設計師選擇在格局前後處共規劃了兩道天井設計,光線以直線方式從頂樓穿透至一樓,甚至還能斜角滲透至室內各處,白天不用開燈,採光照樣充足,做到照明設備的能源節省,變項省下更多的電費。
04 隔柵折門,讓通風循環再更好
一樓車庫大門,選擇以隔柵折門來做表現,折門收放容易,同時也能運用其層層格柵特色,讓風能從縫中穿透至室內,使得整體通風循環又再變得更好。
05 減少不必要隔間,風和空氣流動不息
在一般的室內格局中,隔間牆的存在容易成為阻礙通風、換氣的原因之一,因此為了讓長型空間通風完善,設計師選擇盡量以開放式設計來做規劃,並減少不必要隔間,讓通風良好、換氣恣意,不開冷氣空調,風和空氣都能在室內流動不息。
06 屋頂綠化發揮隔熱效果,降低建築溫度
越南當地為熱帶氣候,為了有效從建築設計就能做到抗熱,設計師選擇在屋頂加入綠化設計,除了植栽、草皮,它還結合防水膜以及其他組成的屋頂裝置,透過層層的結構設計,既能夠避免陽光直射到建築物本身,有效阻隔熱能,也能降低建築的溫度。
07 最純淨涼爽的通風設計
立面牆搭配落地窗設計,只要將門窗打開,就算不靠冷氣,在家也能享受最純淨涼爽的通風設計。
08+09 混凝土花槽牆,淨化空氣Non-stop
建築利用12層混凝土花槽做建構,種滿綠色植栽,會吸收陽光行光合作用,給室內良好的空氣品質,並達到隔熱效果。花槽與花盆有考量到植物高度,所以層與層之間規劃25~40cm的間距設計,同時也加入自動灌溉、雨水回收系統,淨化空間Non-stop,同時也能做到水資源再利用。
越南胡志明市。獨棟。坪數/約67坪。格局/3房2廳
Vo Trong Nghia Architects
設計師/Vo Trong Nghia‧Daisuke Sanuki‧Shunri Nishizawa
網址/www.votrongnghia.com
信箱/hcmc@vtnaa.com、hanoi@vtnaa.com
更多當代住宅設計案例請看《當代住宅設計聖經》









